KL7UW
1296 MHZ EME
1296 EME Station:
The dish is fitted with a W2IMU* feedhorn, G4DDK VLNA, and 600w solid-state power amplifier.
This permits running less expensive LMR-600 hardline to the dish. First 1296 MHz EME operation
on the 4.9m dish was using a 60w amplifier in February 2014.
*Previous feed was a septum; Go here for information about the Septum Feed.
Sept, 2024:
Dish will be installed with new base end of September, with additional time to mount feed and install 1296 amplifier.
Hope to be QRV 1296-eme for fall ARRL EME Contest.
November 22, 2023:
Admited to hospital with severe infection left heel and foot. Resulted in amputation of left leg below the knee on December 1.
Recovery took one month followed by two months resident rehabilitation therapy. Feb. 15 received my prosthetic leg.
Came home on Feb. 29.
Doing out-patient physical therapy while using walker; going to use of ski-poles and eventually unassisted walking (summer 2024?).
August 18, 2023:
Azimuth drive crossbeams installed and welded and SD-12 Sun Slew drive installed.
Dish back structure under constrution nearing completion

June 3, 2023:
Delivery of new base (two parts) for the dish (photos):

March 13, 2023:
After nearly two years delay, my welder is working on my dish support tower with delivery eta of end of April.
This will work out well as weather will be well into spring with most snow melted. Dish may still have some snow
on it. Retrofit of dish back frame and replacement of struts with heavier one's probably begin about then.
Re-installation of dish could be in May with testing. 500w PA and 50v PS will be in a half-height relay cabinet
located under the dish.
October 2, 2020:
Removed the dish using a boom truck, today. Hoping to have new base tower and back structure completed and dish
re-installed by end of the month. Will add some photos of the progress.
Dish on the ground
July, 2020 Update:
Purchased a model SD-12 Sun-Slew helical drive for my dish (July 2) and should arrive from China in two weeks.
Sun-Slew Description
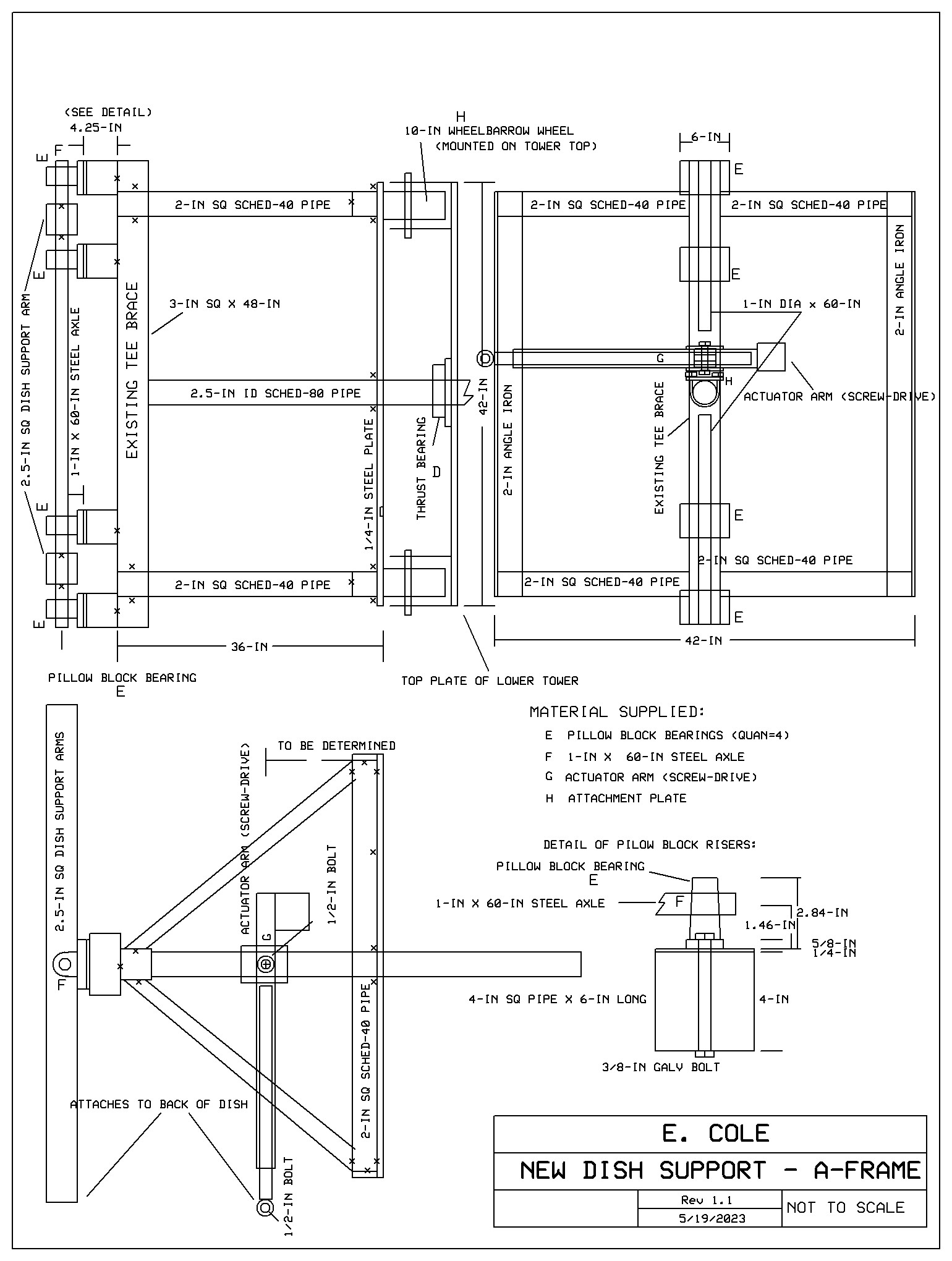
Here is a prelimnary redesign for the dish mount (updated March 2023):
Redesign (V3 & V4) of proposed base tower, 2022. B1 shows three views of tower top design.
January, 2020 Update:
Significant damage was sustained to angle-steel back-frame of the dish when the 1/2-inch bolt holding the elevation
actuator sheared while we were on extended vacation in summer 2018. The dish dropped about two foot with a slight
deformation on the lower edge. Repair will require removal of the dish, so this presents an opportunity to redesign
the azimuth drive using a helical screw drive and redesign the mount to a pedestal type. This planned for summer 2020.
Quad feed support will be replace with a more substantial one. 1296 and 3400 MHz is QRT during this period.
April, 2018 Update:
New W6PQL 600w amplifier has been purchased which will replace the 300w amplifier.
Link to amplifier details.
600w amp will be driven with 6.5w direct from 18w DEMI transverter running <9w located in the new hamshack. Coax run (LMR-400)
to amp is about 20-feet (1.3 dB loss) so the 10w driver amp will not be needed (re-purposed as driver for my 60w terrestrial 1296 amp).
Details of the original dish are now archived since redesign is in progress
Return for updates on station progress!
Return to Home Page